ザ・パークハビオ日本橋茅場町
(空室 3)- 【 キャッシュバックあり 】クレディフォルムでお得に契約
-
初回ホームページからのお問い合わせ限定!
「仲介手数料の割引」「キャッシュバック」などお得な条件でのご契約が可能です。
※キャッシュバックや初期費用のお見積はお気軽にお問い合わせください。
銀座で15年の実績。都心部のお部屋探しならクレディフォルムにお任せください。
ザ・パークハビオ日本橋茅場町の募集中の部屋一覧
(空室3)ザ・パークハビオ日本橋茅場町の物件概要
| 建物名 | ザ・パークハビオ日本橋茅場町 | ||
|---|---|---|---|
| フリガナ | - | ||
| 所在地 | 東京都中央区日本橋茅場町2丁目 | ||
| 交通 |
日比谷線
『茅場町駅』
徒歩3分 東西線 『茅場町駅』 徒歩3分 都営浅草線 『日本橋駅』 徒歩6分 |
||
| 賃料 | 24.1万円 ~ 26.1万円 | 管理費 | 20,000円 |
| 敷金 | 1.0ヶ月 | 礼金 | 0.0ヶ月 |
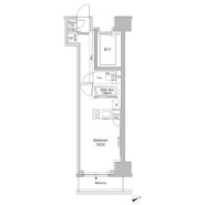
| 面積 | 38.35㎡ ~ 40.04㎡ | 間取り | 1LDK ~ 2LDK |
| 構造 | 鉄筋コンクリート | 総階数 | 地上10階 |
| 築年月 | 2026年1月 | 総戸数 | - |
| 駐車場 | 駐車場有り / 77,000円(税込) | ||
| 特徴 | エレベーター / 光ファイバー / 駐車場あり / ペット相談 / 楽器相談 / SOHO利用相談 / フローリング / 最上階 / 角部屋 | ||
| 設備 | 防犯カメラ / フリーレント / 室内洗濯機置場 / バルコニー / IHクッキングヒーター / ガスコンロ / コンロ2口以上 / コンロ3口 / バス・トイレ別 / 追焚機能浴室 / 浴室乾燥機 / 温水洗浄便座 / 洗面台 / シャワー / エアコン / ウォークインクロゼット / ウォークインシューズクロゼット / TVモニタ付インターホン / 宅配ボックス | ||
- ※写真や間取り図が現状と相違する場合は現状を優先させていただきます。
- ※掲載している物件が万が一ご成約の場合はご了承ください。
- ※駐車場、バイク置場、駐輪場の正確な空き状況についてはお問合せください。
- ※ペット飼育やSOHO利用の可否に関しては、建物の管理規約で可能になっていても、お部屋の所有者様によって禁止の場合もございますので御注意下さい。詳細はメールやお電話にてスタッフまでご相談下さい。
- ※こちら以外にも空室がある場合がございます。お電話かメールにてお気軽にお問合せください。
『ザ・パークハビオ日本橋茅場町』は東京都中央区日本橋茅場町2丁目にある、2026年築の賃貸マンションです。
最寄駅は、日比谷線『茅場町駅』、東西線『茅場町駅』、都営浅草線『日本橋駅』です。
05月11日現在、空室が「3」室です。お問い合わせいただければ、すぐに内見が可能です。
ただいま、礼金ゼロのお部屋をご案内出来ます。
銀座・月島・勝どき・人形町・中央区の賃貸・売買物件をお探しなら、株式会社クレディフォルムまでお問い合わせください。中央区・港区をはじめとした一都三県全域にて、タワーマンションやデザイナーズ物件、またフリーレント物件などを扱っております。
--- お客様お問い合わせ先 ------------------
株式会社クレディフォルム TEL:03-6228-5878
都営浅草線・東京メトロ日比谷線『東銀座駅』から徒歩3分
東京メトロ銀座線「銀座駅」徒歩2分
営業時間:10:00~20:00 定休日:年中無休(年末年始を除く)
ザ・パークハビオ日本橋茅場町の部屋画像
ザ・パークハビオ日本橋茅場町の周辺MAP
※地図上の建物所在地は誤差がある場合があります。
拡大ザ・パークハビオ日本橋茅場町の周辺施設
| 築地川公園 徒歩18分 |





