ルフォンプログレ蔵前プレミア 10階 /1K
| 賃料 | 141,000円 | 管理費 | 15,000円 |
|---|---|---|---|
| 築年月 | 2022年1月 | 所在階 | 10階 / 全14階 |
| 専有面積 | 25.38㎡ | 間取り | 1K |
| 敷金 | 1.0ヶ月 | 礼金 | 1.0ヶ月 |
| 敷金積み増し | - | ||
| その他初期費用 | 室内清掃費用:44,000円 | ||
| 更新料 | 1.0ヶ月 | 保証金 | - |
| 入居日 | 2026年 6月 予定 | 仲介手数料 | 1.1ヶ月 |
| 現況 | 居住中 | 取引態様 | 仲介 |
| 賃借種別 | 普通賃貸借 | 定期借家期間 | - |
| 所在地 | 東京都台東区浅草橋3丁目 | ||
| 交通 |
都営浅草線
『蔵前駅』
徒歩3分 総武本線 『馬喰町駅』 徒歩12分 総武線 『浅草橋駅』 徒歩7分 |
||
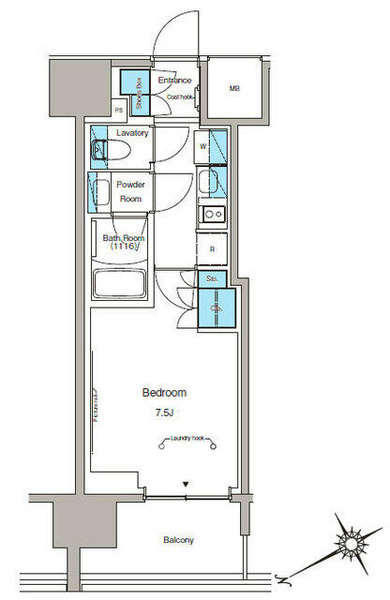
ルフォンプログレ蔵前プレミアの見取り図・外観・内観
- ルフォンプログレ蔵前プレミアのおすすめポイント
-
宅配ボックスがあるのでリモートワークでも直接受け取る必要がなく仕事に集中することができます。エントランスにはオートロック機能が付いているので、建物内に知らない来訪者が入って来づらくなります。室内設備は浴室乾燥機・洗面所独立など大変充実しております。こちらは1Kの物件です。台東区エリアと都営浅草線蔵前付近のお部屋探しなら当社へ。あなたからのお問い合せをスタッフ一同お待ちしております。
ルフォンプログレ蔵前プレミアの物件概要
| 建物名 | ルフォンプログレ蔵前プレミア | 所在地 | 東京都台東区浅草橋3丁目 |
|---|---|---|---|
| 交通 |
都営浅草線
『蔵前駅』
徒歩3分 総武本線 『馬喰町駅』 徒歩12分 総武線 『浅草橋駅』 徒歩7分 |
||
| 構造 | 鉄筋コンクリート | 総階数 | 地上14階 |
| 築年月 | 2022年1月 | 総戸数 | - |
| 賃料 | 14.1万円 | 管理費 | 15,000円 |
| 面積 | 25㎡ | 間取り | 1K ~ 2K |
| 敷金 | 1.0ヶ月 | 礼金 | 1.0ヶ月 |
| 駐車場 | - | ||
| 特徴 | エレベーター / CS / BS / CATV / ペット相談 / フローリング | ||
| 設備 | オートロック システムキッチン / バス・トイレ別 / 浴室乾燥機 / エアコン / 宅配ボックス / 室内洗濯機置場 / バルコニー / 独立洗面台 | ||
- ※写真や間取り図が現状と相違する場合は現状を優先させていただきます。
- ※掲載している物件が万が一ご成約の場合はご了承ください。
- ※駐車場、バイク置場、駐輪場の正確な空き状況についてはお問合せください。
- ※ペット飼育やSOHO利用の可否に関しては、建物の管理規約で可能になっていても、お部屋の所有者様によって禁止の場合もございますので御注意下さい。詳細はメールやお電話にてスタッフまでご相談下さい。
- ※こちら以外にも空室がある場合がございます。お電話かメールにてお気軽にお問合せください。
ルフォンプログレ蔵前プレミアの周辺MAP
※地図上の建物所在地は誤差がある場合があります。
拡大ルフォンプログレ蔵前プレミアの周辺施設
| 吉野家 浅草橋駅東口店 徒歩6分 |





