ザ・パークハビオ月島フロント 6階 /1R
| 賃料 | 140,000円 | 管理費 | 10,000円 |
|---|---|---|---|
| 築年月 | 2019年10月 | 所在階 | 6階 / 全10階 |
| 専有面積 | 25.47㎡ | 間取り | 1R |
| 敷金 | 1.0ヶ月 | 礼金 | 1.0ヶ月 |
| 敷金積み増し | - | ||
| その他初期費用 | 入居時鍵交換費用:33,000円 M-REALプレミアム会費2年:19,800円 | ||
| 更新料 | 1.0ヶ月 | 保証金 | - |
| 入居日 | 2026年 4月 予定 | 仲介手数料 | 1.1ヶ月 |
| 現況 | 空家・空室 | 取引態様 | 仲介 |
| 賃借種別 | 普通賃貸借 | 定期借家期間 | - |
| 所在地 | 東京都中央区佃3丁目 | ||
| 交通 |
有楽町線
『月島駅』
徒歩1分 都営大江戸線 『月島駅』 徒歩1分 |
||
ザ・パークハビオ月島フロントの見取り図・外観・内観
- ザ・パークハビオ月島フロントのおすすめポイント
-
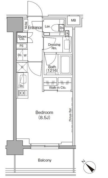
収納はウォークインクロゼット・シューズボックスなど豊富なので、衣類や履き物の整理がしやすく便利です。室内設備は浴室乾燥機・洗面所独立など充実した設備を備え付けています。自宅で音楽を楽しみたい方、楽器応相談。お部屋の情報から周辺地域の情報までお任せください。当社では、地域に詳しい熟練スタッフが中央区や有楽町線月島付近でのお部屋探しをサポート致します。
ザ・パークハビオ月島フロントの物件概要
| 建物名 | ザ・パークハビオ月島フロント | 所在地 | 東京都中央区佃3丁目 |
|---|---|---|---|
| 交通 |
有楽町線
『月島駅』
徒歩1分 都営大江戸線 『月島駅』 徒歩1分 |
||
| 構造 | 鉄筋コンクリート | 総階数 | 地上10階 |
| 築年月 | 2019年10月 | 総戸数 | 112戸 |
| 賃料 | 14.0万円 ~ 14.3万円 | 管理費 | 10,000円 |
| 面積 | 25㎡ ~ 25㎡ | 間取り | 1R ~ 1K |
| 敷金 | 1.0ヶ月 | 礼金 | 1.0ヶ月 |
| 駐車場 | - | ||
| 特徴 | エレベーター / BS / 光ファイバー / ペット相談 / 楽器相談 / フローリング | ||
| 設備 | 防犯カメラ / フロントサービス / オートロック / 24時間ゴミ置場利用可 保証人不要 / 都市ガス / システムキッチン / バス・トイレ別 / 浴室乾燥機 / エアコン / ウォークインクロゼット / シューズボックス / TVモニタ付インターホン / 宅配ボックス / 室内洗濯機置場 / バルコニー / 追焚機能浴室 / 温水洗浄便座 / 独立洗面台 | ||
- ※写真や間取り図が現状と相違する場合は現状を優先させていただきます。
- ※掲載している物件が万が一ご成約の場合はご了承ください。
- ※駐車場、バイク置場、駐輪場の正確な空き状況についてはお問合せください。
- ※ペット飼育やSOHO利用の可否に関しては、建物の管理規約で可能になっていても、お部屋の所有者様によって禁止の場合もございますので御注意下さい。詳細はメールやお電話にてスタッフまでご相談下さい。
- ※こちら以外にも空室がある場合がございます。お電話かメールにてお気軽にお問合せください。
ザ・パークハビオ月島フロントの周辺MAP
※地図上の建物所在地は誤差がある場合があります。
拡大ザ・パークハビオ月島フロントの周辺施設
| 築地川公園 徒歩18分 |





