ロイヤルパークス品川 26階 /3LDK
| 賃料 | 950,000円 | 管理費 | 30,000円 |
|---|---|---|---|
| 築年月 | 2025年1月 | 所在階 | 26階 / 全28階 |
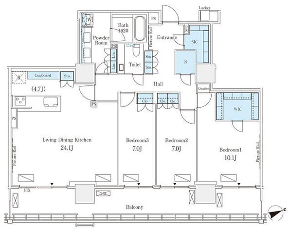
| 専有面積 | 121.39㎡ | 間取り | 3LDK |
| 敷金 | 1.0ヶ月 | 礼金 | 0.0ヶ月 |
| 敷金積み増し | - | ||
| その他初期費用 | 室内清掃費用:186,940円 | ||
| 更新料 | 1.0ヶ月 | 保証金 | - |
| 入居日 | 2026年 6月 予定 | 仲介手数料 | 1.1ヶ月 |
| 現況 | 居住中 | 取引態様 | 仲介 |
| 賃借種別 | 普通賃貸借 | 定期借家期間 | - |
| 所在地 | 東京都港区港南3丁目 | ||
| 交通 |
山手線
『品川駅』
徒歩11分 |
||
ロイヤルパークス品川の見取り図・外観・内観
- ロイヤルパークス品川のおすすめポイント
-
オートロック機能が付いているのでドアの前まで知らない人が入って来る危険が減り、安心して暮らせます。室内設備は浴室乾燥機・洗面所独立などが揃っており、とても充実しています。共用部にはゴミ出し24時間OK・宅配ボックスなどが揃っており、とても充実しています。納得できる住まい選びを行っていきませんか。住まい環境はより良いものにしていきましょう。まずはこちらからご覧ください。
ロイヤルパークス品川の物件概要
| 建物名 | ロイヤルパークス品川 | 所在地 | 東京都港区港南3丁目 |
|---|---|---|---|
| 交通 |
山手線
『品川駅』
徒歩11分 |
||
| 構造 | 鉄筋コンクリート | 総階数 | 地上28階 / 地下1階 |
| 築年月 | 2025年1月 | 総戸数 | - |
| 賃料 | 95.0万円 | 管理費 | 30,000円 |
| 面積 | 121㎡ | 間取り | 1LDK ~ 4LDK |
| 敷金 | 1.0ヶ月 | 礼金 | 0.0ヶ月 |
| 駐車場 | - | ||
| 特徴 | エレベーター / CS / BS / ペット相談 / 楽器相談 / フローリング | ||
| 設備 | フロントサービス / オートロック / 24時間ゴミ置場利用可 システムキッチン / バス・トイレ別 / 浴室乾燥機 / エアコン / ウォークインクロゼット / 宅配ボックス / 室内洗濯機置場 / バルコニー / 追焚機能浴室 / 独立洗面台 / 床暖房 | ||
- ※写真や間取り図が現状と相違する場合は現状を優先させていただきます。
- ※掲載している物件が万が一ご成約の場合はご了承ください。
- ※駐車場、バイク置場、駐輪場の正確な空き状況についてはお問合せください。
- ※ペット飼育やSOHO利用の可否に関しては、建物の管理規約で可能になっていても、お部屋の所有者様によって禁止の場合もございますので御注意下さい。詳細はメールやお電話にてスタッフまでご相談下さい。
- ※こちら以外にも空室がある場合がございます。お電話かメールにてお気軽にお問合せください。
ロイヤルパークス品川の周辺MAP
※地図上の建物所在地は誤差がある場合があります。
拡大ロイヤルパークス品川の周辺施設
| まいばすけっと 芝浦3丁目店 徒歩17分 |





