ザ・グランクラッセ日本橋イースト 2階 /2LDK
| 賃料 | 399,000円 | 管理費 | 20,000円 |
|---|---|---|---|
| 築年月 | 2020年10月 | 所在階 | 2階 / 全12階 |
| 専有面積 | 71.7㎡ | 間取り | 2LDK |
| 敷金 | 1.0ヶ月 | 礼金 | 0.0ヶ月 |
| 敷金積み増し | - | ||
| その他初期費用 | 室内清掃費用:110,418円 | ||
| フリーレント | 1.0ヶ月 | ||
| 更新料 | 1.0ヶ月 | 保証金 | - |
| 入居日 | 即時 | 仲介手数料 | 1.1ヶ月 |
| 現況 | 空家・空室 | 取引態様 | 仲介 |
| 賃借種別 | 普通賃貸借 | 定期借家期間 | - |
| 所在地 | 東京都中央区新川2丁目 | ||
| 交通 |
京葉線
『八丁堀駅』
徒歩4分 日比谷線 『茅場町駅』 徒歩5分 日比谷線 『八丁堀駅』 徒歩5分 |
||
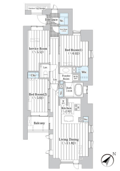
ザ・グランクラッセ日本橋イーストの見取り図・外観・内観
- ザ・グランクラッセ日本橋イーストのおすすめポイント
-
室内設備はエアコン・システムキッチン・追い焚きなどが揃っており、とても充実しています。誰もが得をする礼金不要の好条件なマンションでございます。お部屋から徒歩4分の場所に駅が位置するので、毎日の移動時間を削減できます。賃料は39.9万円です。03-6228-5878より当社クレディフォルムまでご連絡下さい。皆様の素敵な新生活のお手伝いを致します。
ザ・グランクラッセ日本橋イーストの物件概要
| 建物名 | ザ・グランクラッセ日本橋イースト | 所在地 | 東京都中央区新川2丁目 |
|---|---|---|---|
| 交通 |
京葉線
『八丁堀駅』
徒歩4分 日比谷線 『茅場町駅』 徒歩5分 日比谷線 『八丁堀駅』 徒歩5分 |
||
| 構造 | 鉄筋コンクリート | 総階数 | 地上12階 / 地下1階 |
| 築年月 | 2020年10月 | 総戸数 | - |
| 賃料 | 35.4万円 ~ 41.2万円 | 管理費 | 20,000円 |
| 面積 | 65㎡ ~ 72㎡ | 間取り | 2LDK ~ 3LDK |
| 敷金 | 1.0ヶ月 | 礼金 | 0.0ヶ月 |
| 駐車場 | - | ||
| 特徴 | エレベーター / ペット相談 / フローリング | ||
| 設備 | オートロック フリーレント / システムキッチン / バス・トイレ別 / 浴室乾燥機 / エアコン / ウォークインクロゼット / 宅配ボックス / 室内洗濯機置場 / バルコニー / 追焚機能浴室 / 独立洗面台 / 床暖房 | ||
- ※写真や間取り図が現状と相違する場合は現状を優先させていただきます。
- ※掲載している物件が万が一ご成約の場合はご了承ください。
- ※駐車場、バイク置場、駐輪場の正確な空き状況についてはお問合せください。
- ※ペット飼育やSOHO利用の可否に関しては、建物の管理規約で可能になっていても、お部屋の所有者様によって禁止の場合もございますので御注意下さい。詳細はメールやお電話にてスタッフまでご相談下さい。
- ※こちら以外にも空室がある場合がございます。お電話かメールにてお気軽にお問合せください。
ザ・グランクラッセ日本橋イーストの周辺MAP
※地図上の建物所在地は誤差がある場合があります。
拡大ザ・グランクラッセ日本橋イーストの周辺施設
| 築地川公園 徒歩17分 |





