EDIT文京千石Ⅱ 1階 /1LDK
| 賃料 | 209,500円 | 管理費 | 18,000円 |
|---|---|---|---|
| 築年月 | 2025年11月 | 所在階 | 1階 / 全5階 |
| 専有面積 | 42.88㎡ | 間取り | 1LDK |
| 敷金 | 0.0ヶ月 | 礼金 | 0.0ヶ月 |
| 敷金積み増し | - | ||
| その他初期費用 | - | ||
| 更新料 | 1.0ヶ月 | 保証金 | - |
| 入居日 | 即時 | 仲介手数料 | 1.1ヶ月 |
| 現況 | 空家・空室 | 取引態様 | 仲介 |
| 賃借種別 | 普通賃貸借 | 定期借家期間 | - |
| 所在地 | 東京都文京区千石4丁目35-12 | ||
| 交通 |
都営三田線
『千石駅』
徒歩4分 山手線 『巣鴨駅』 徒歩8分 南北線 『駒込駅』 徒歩14分 |
||
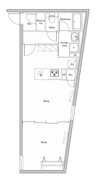
EDIT文京千石Ⅱの見取り図・外観・内観
- EDIT文京千石Ⅱのおすすめポイント
-
「EDIT文京千石Ⅱ」:文京区エリアの新居にピッタリ。知らない来訪者が玄関前まで来ることが減るので防犯対策につながるオートロック機能があります。浴室乾燥機付きの物件のため、風呂干しが可能です。フローリング張りの物件です。03-6228-5878までお電話いただければ、クレディフォルムが住まい探しをサポート致します。まずはお気軽にご連絡下さい。
EDIT文京千石Ⅱの物件概要
| 建物名 | EDIT文京千石Ⅱ | 所在地 | 東京都文京区千石4丁目35-12 |
|---|---|---|---|
| 交通 |
都営三田線
『千石駅』
徒歩4分 山手線 『巣鴨駅』 徒歩8分 南北線 『駒込駅』 徒歩14分 |
||
| 構造 | 鉄筋コンクリート | 総階数 | 地上5階 |
| 築年月 | 2025年11月 | 総戸数 | 16戸 |
| 賃料 | 16.2万円 ~ 21.0万円 | 管理費 | 18,000円 |
| 面積 | 30㎡ ~ 43㎡ | 間取り | 1LDK |
| 敷金 | 0.0ヶ月 | 礼金 | 0.0ヶ月 |
| 駐車場 | - | ||
| 特徴 | エレベーター / BS / ペット相談 / フローリング | ||
| 設備 | オートロック 都市ガス / IHクッキングヒーター / コンロ2口以上 / コンロ3口 / バス・トイレ別 / 浴室乾燥機 / エアコン / インターネット対応 / 宅配ボックス / 室内洗濯機置場 / 追焚機能浴室 / 温水洗浄便座 | ||
- ※写真や間取り図が現状と相違する場合は現状を優先させていただきます。
- ※掲載している物件が万が一ご成約の場合はご了承ください。
- ※駐車場、バイク置場、駐輪場の正確な空き状況についてはお問合せください。
- ※ペット飼育やSOHO利用の可否に関しては、建物の管理規約で可能になっていても、お部屋の所有者様によって禁止の場合もございますので御注意下さい。詳細はメールやお電話にてスタッフまでご相談下さい。
- ※こちら以外にも空室がある場合がございます。お電話かメールにてお気軽にお問合せください。
EDIT文京千石Ⅱの周辺MAP
※地図上の建物所在地は誤差がある場合があります。
拡大EDIT文京千石Ⅱの周辺施設
| 吉野家 巣鴨南口店 徒歩7分 |





