シャトレ代官山アネックス 1階 /101.104
敷金ゼロ お気に入り追加
| 賃料 | 935,000円 | 管理費 | 0円 |
|---|---|---|---|
| 築年月 | 1985年3月 | 所在階 | 1階 / 全5階 |
| 面積(坪数) | 158.54㎡(47.00坪) | 坪単価 | 2.0万円 |
| 敷金 | 0.0ヶ月 | 礼金 | 1.0ヶ月 |
| 敷金積み増し | - | ||
| その他初期費用 | - | ||
| 更新料 | - | 保証金 | 10.0ヶ月 |
| 入居日 | 即時 | 仲介手数料 | 1ヶ月 |
| 現況 | 空家・空室 | 取引態様 | 媒介 |
| 賃借種別 | 普通賃貸借 | 定期借家期間 | 普通2年 |
| 所在地 | 東京都渋谷区代官山町2-6 | ||
| 交通 |
山手線
『渋谷駅』
徒歩6分 東急東横線 『代官山駅』 徒歩8分 山手線 『恵比寿駅』 徒歩11分 |
||
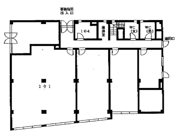
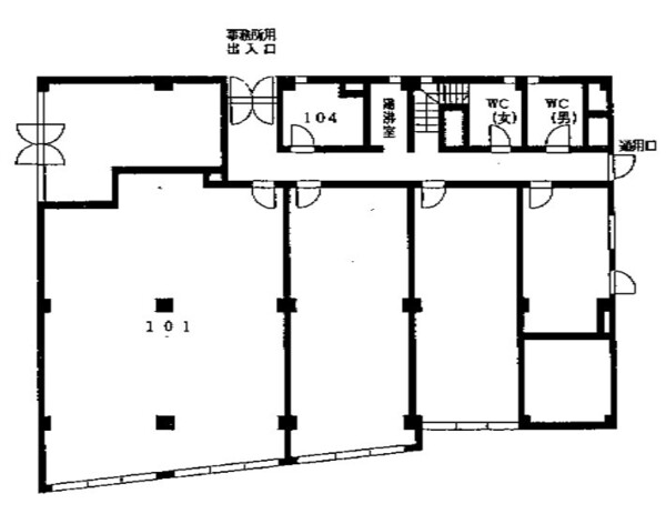
シャトレ代官山アネックスの見取り図・外観・内観
- シャトレ代官山アネックスのおすすめポイント
-
【1階/101+104号室】
★代官山事務所
★1階事務所
★101 146.32㎡(44.26坪)スケルトン
104 12.22㎡(3.7坪)事務所仕様
シャトレ代官山アネックスの物件概要
| 建物名 | シャトレ代官山アネックス | 所在地 | 東京都渋谷区代官山町2-6 |
|---|---|---|---|
| 交通 |
山手線
『渋谷駅』
徒歩6分 東急東横線 『代官山駅』 徒歩8分 山手線 『恵比寿駅』 徒歩11分 |
||
| 構造 | 鉄筋コンクリート | 総階数 | 地上5階 / 地下1階 |
| 築年月 | 1985年3月 | 総戸数 | - |
| 賃料 | 93.5万円 | 管理費 | - |
| 面積 | 159㎡ | 間取り | - |
| 敷金 | 0.0ヶ月 | 礼金 | 1.0ヶ月 |
| 駐車場 | - | ||
| 特徴 | 1階店舗 / 事務所使用可 / 角部屋 | ||
| 設備 | |||
- ※写真や間取り図が現状と相違する場合は現状を優先させていただきます。
- ※掲載している物件が万が一ご成約の場合はご了承ください。
- ※駐車場、バイク置場、駐輪場の正確な空き状況についてはお問合せください。
- ※ペット飼育やSOHO利用の可否に関しては、建物の管理規約で可能になっていても、お部屋の所有者様によって禁止の場合もございますので御注意下さい。詳細はメールやお電話にてスタッフまでご相談下さい。
- ※こちら以外にも空室がある場合がございます。お電話かメールにてお気軽にお問合せください。
シャトレ代官山アネックスの周辺MAP
※地図上の建物所在地は誤差がある場合があります。
拡大





