三貴丸ビルⅢ 2階 /2F
敷金ゼロ お気に入り追加
| 賃料 | 363,000円 | 管理費 | 33,000円 |
|---|---|---|---|
| 築年月 | 1962年3月 | 所在階 | 2階 / 全2階 |
| 面積(坪数) | 49.22㎡(14.00坪) | 坪単価 | 2.6万円 |
| 敷金 | 0.0ヶ月 | 礼金 | 3.0ヶ月 |
| 敷金積み増し | - | ||
| その他初期費用 | 造作譲渡代:3,850,000円 | ||
| 更新料 | - | 保証金 | 3.0ヶ月 |
| 入居日 | 即時 | 仲介手数料 | 1ヶ月 |
| 現況 | 空家・空室 | 取引態様 | 媒介 |
| 賃借種別 | 定期借家 | 定期借家期間 | 5年 |
| 所在地 | 東京都杉並区高円寺北3-22-11 | ||
| 交通 |
中央・総武緩行線
『高円寺駅』
徒歩2分 丸ノ内線 『新高円寺駅』 徒歩14分 中央・総武緩行線 『阿佐ヶ谷駅』 徒歩17分 |
||
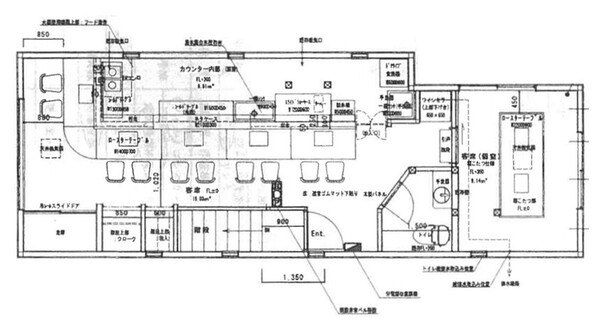
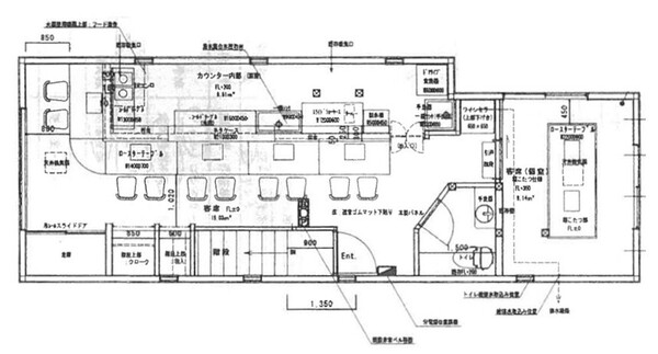
三貴丸ビルⅢの見取り図・外観・内観
- 三貴丸ビルⅢのおすすめポイント
-
【2階】
★高円寺店舗
★高円寺駅北口2分
★純情商店街沿い
★焼肉店居抜き
★カウンター8席+テーブル4席+座敷10席
三貴丸ビルⅢの物件概要
| 建物名 | 三貴丸ビルⅢ | 所在地 | 東京都杉並区高円寺北3-22-11 |
|---|---|---|---|
| 交通 |
中央・総武緩行線
『高円寺駅』
徒歩2分 丸ノ内線 『新高円寺駅』 徒歩14分 中央・総武緩行線 『阿佐ヶ谷駅』 徒歩17分 |
||
| 構造 | 木造 | 総階数 | 地上2階 |
| 築年月 | 1962年3月 | 総戸数 | - |
| 賃料 | 36.3万円 | 管理費 | 33,000円 |
| 面積 | 49㎡ | 間取り | - |
| 敷金 | 0.0ヶ月 | 礼金 | 3.0ヶ月 |
| 駐車場 | - | ||
| 特徴 | |||
| 設備 | 飲食店可 / 居抜物件 / 重飲食可 / 軽飲食可 | ||
- ※写真や間取り図が現状と相違する場合は現状を優先させていただきます。
- ※掲載している物件が万が一ご成約の場合はご了承ください。
- ※駐車場、バイク置場、駐輪場の正確な空き状況についてはお問合せください。
- ※ペット飼育やSOHO利用の可否に関しては、建物の管理規約で可能になっていても、お部屋の所有者様によって禁止の場合もございますので御注意下さい。詳細はメールやお電話にてスタッフまでご相談下さい。
- ※こちら以外にも空室がある場合がございます。お電話かメールにてお気軽にお問合せください。
三貴丸ビルⅢの周辺MAP
※地図上の建物所在地は誤差がある場合があります。
拡大





