PARK HABIO門前仲町 12階 /1205 /1R
| 賃料 | 130,000円 | 管理費 | 10,000円 |
|---|---|---|---|
| 築年月 | 2014年2月 | 所在階 | 12階 / 全13階 |
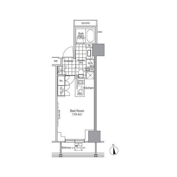
| 専有面積 | 27.34㎡ | 間取り | 1R |
| 敷金 | 1.0ヶ月 | 礼金 | 0.0ヶ月 |
| 敷金積み増し | ペット飼育:1ヶ月&事務所兼用:1ヶ月 | ||
| その他初期費用 | 鍵交換代:16,500円 | ||
| 更新料 | 1.0ヶ月 | 保証金 | - |
| 入居日 | 即時 | 仲介手数料 | 0.0ヶ月 |
| 現況 | 空家・空室 | 取引態様 | 仲介 |
| 賃借種別 | 普通賃貸借 | 定期借家期間 | - |
| 所在地 | 東京都江東区深川2丁目5-11 | ||
| 交通 |
都営大江戸線
『門前仲町駅』
徒歩2分 京葉線 『越中島駅』 徒歩11分 半蔵門線 『清澄白河駅』 徒歩12分 |
||
PARK HABIO門前仲町の見取り図・外観・内観
- PARK HABIO門前仲町のおすすめポイント
-
江東区深川の高級賃貸マンション【パークハビオ門前仲町】です。
都営大江戸線『門前仲町』駅から徒歩2分の好立地。すぐそばにスーパーがあり普段のお買い物は非常に便利。
建物のエントランスはオートロックがついており、防犯カメラやインターホンにはTVモニタもついているため女性の一人暮らしでも安心です。
また、防音・楽器相談可なので、音大生、音楽好きな方などにもおすすめです。
通信設備面では、インターネット接続が可能。また、BSアンテナ・CSアンテナがありCATVにも対応(別途工事、契約料が必要な場合あり)。
共用部には宅配ボックスが設定されているので、不在の時にも荷物を受け取ることができます。また、ペット飼育の相談もできますので、あなたの大切な家族の一員も快適に暮らせるか、ぜひ確認してみてください。周辺には清澄庭園を始めとした緑あふれる公園がいくつもございますので、休日のお散歩コースには困りません。
ぜひ、【パークハビオ門前仲町】をご検討ください。
PARK HABIO門前仲町の物件概要
| 建物名 | PARK HABIO門前仲町 | 所在地 | 東京都江東区深川2丁目5-11 |
|---|---|---|---|
| 交通 |
都営大江戸線
『門前仲町駅』
徒歩2分 京葉線 『越中島駅』 徒歩11分 半蔵門線 『清澄白河駅』 徒歩12分 |
||
| 構造 | 鉄筋コンクリート | 総階数 | 地上13階 |
| 築年月 | 2014年2月 | 総戸数 | - |
| 賃料 | 10.6万円 ~ 14.3万円 | 管理費 | 10,000円 |
| 面積 | 25㎡ ~ 29㎡ | 間取り | 1R |
| 敷金 | 1.0ヶ月 | 礼金 | 0.0ヶ月 ~ 1.0ヶ月 |
| 駐車場 | 機械式駐車場有り / 32,000円(税込) | ||
| 特徴 | エレベーター / 光ファイバー / 駐車場あり / ペット相談 / 楽器相談 / SOHO利用相談 / フローリング | ||
| 設備 | 防犯カメラ / オートロック / 24時間ゴミ置場利用可 仲介手数料無料 / 室内洗濯機置場 / バルコニー / 24時間換気システム / 照明器具付き / 駐輪場 / バイク置場あり / 敷地内ごみ置き場 / ガスコンロ / コンロ2口以上 / システムキッチン / 対面式キッチン / バス・トイレ別 / 追焚機能浴室 / 浴室乾燥機 / 温水洗浄便座 / 洗面台 / 独立洗面台 / エアコン / シューズボックス / TVモニタ付インターホン / 宅配ボックス | ||
- ※写真や間取り図が現状と相違する場合は現状を優先させていただきます。
- ※掲載している物件が万が一ご成約の場合はご了承ください。
- ※駐車場、バイク置場、駐輪場の正確な空き状況についてはお問合せください。
- ※ペット飼育やSOHO利用の可否に関しては、建物の管理規約で可能になっていても、お部屋の所有者様によって禁止の場合もございますので御注意下さい。詳細はメールやお電話にてスタッフまでご相談下さい。
- ※こちら以外にも空室がある場合がございます。お電話かメールにてお気軽にお問合せください。
PARK HABIO門前仲町の周辺MAP
※地図上の建物所在地は誤差がある場合があります。
拡大





