楠本第17ビル 2階 /2F
| 賃料 | 397,375円 | 管理費 | 63,580円 |
|---|---|---|---|
| 築年月 | 1969年12月 | 所在階 | 2階 / 全5階 |
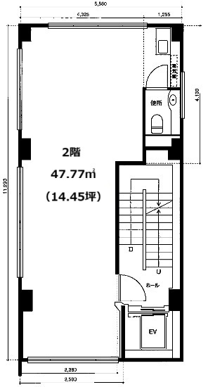
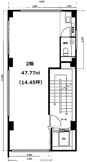
| 専有面積 | 47.77㎡ | 間取り | - |
| 敷金 | 0.0ヶ月 | 礼金 | 0.0ヶ月 |
| 敷金積み増し | - | ||
| その他初期費用 | - | ||
| 更新料 | - | 保証金 | 12.0ヶ月 |
| 入居日 | 即時 | 仲介手数料 | 1ヶ月 |
| 現況 | 空家・空室 | 取引態様 | 媒介 |
| 賃借種別 | 定期借家 | 定期借家期間 | 3年 |
| 所在地 | 東京都中央区銀座1丁目14-12 | ||
| 交通 |
有楽町線
『銀座一丁目駅』
徒歩1分 都営浅草線 『東銀座駅』 徒歩4分 銀座線 『銀座駅』 徒歩5分 |
||
楠本第17ビルの見取り図・外観・内観
- 楠本第17ビルのおすすめポイント
-
【2階】
★銀座店舗
★銀座一丁目駅1分
★1フロア1テナント
★美容室不可
★サロン相談
★スクール相談
楠本第17ビルの物件概要
| 建物名 | 楠本第17ビル | 所在地 | 東京都中央区銀座1丁目14-12 |
|---|---|---|---|
| 交通 |
有楽町線
『銀座一丁目駅』
徒歩1分 都営浅草線 『東銀座駅』 徒歩4分 銀座線 『銀座駅』 徒歩5分 |
||
| 構造 | 鉄骨鉄筋コンクリート | 総階数 | 地上5階 / 地下1階 |
| 築年月 | 1969年12月 | 総戸数 | - |
| 賃料 | 39.7万円 | 管理費 | 63,580円 |
| 面積 | 48㎡ | 間取り | - |
| 敷金 | 0.0ヶ月 | 礼金 | 0.0ヶ月 |
| 駐車場 | - | ||
| 特徴 | エレベーター / 光ファイバー / 事務所使用可 / 角部屋 | ||
| 設備 | ワンフロア / スクール向け / 個別空調 / 機械警備 / エアコン | ||
- ※写真や間取り図が現状と相違する場合は現状を優先させていただきます。
- ※掲載している物件が万が一ご成約の場合はご了承ください。
- ※駐車場、バイク置場、駐輪場の正確な空き状況についてはお問合せください。
- ※ペット飼育やSOHO利用の可否に関しては、建物の管理規約で可能になっていても、お部屋の所有者様によって禁止の場合もございますので御注意下さい。詳細はメールやお電話にてスタッフまでご相談下さい。
- ※こちら以外にも空室がある場合がございます。お電話かメールにてお気軽にお問合せください。
楠本第17ビルの周辺MAP
※地図上の建物所在地は誤差がある場合があります。
拡大





