Sera.U桜台駅前 1階 /1F
| 賃料 | 297,000円 | 管理費 | 0円 |
|---|---|---|---|
| 築年月 | 1990年7月 | 所在階 | 1階 / 全4階 |
| 面積(坪数) | 49.24㎡(14.00坪) | 坪単価 | 2.1万円 |
| 敷金 | 3.0ヶ月 | 礼金 | 1.0ヶ月 |
| 敷金積み増し | - | ||
| その他初期費用 | - | ||
| 更新料 | 1.0ヶ月 | 保証金 | - |
| 入居日 | 即時 | 仲介手数料 | 1ヶ月 |
| 現況 | 空家・空室 | 取引態様 | 媒介 |
| 賃借種別 | 普通賃貸借 | 定期借家期間 | 普通2年 |
| 所在地 | 東京都練馬区桜台1‐5-4 | ||
| 交通 |
西武池袋線
『桜台駅』
徒歩1分 都営大江戸線 『練馬駅』 徒歩8分 西武有楽町線 『新桜台駅』 徒歩10分 |
||
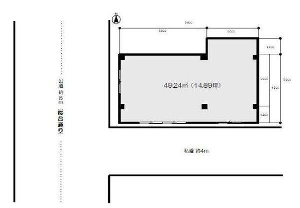
Sera.U桜台駅前の見取り図・外観・内観
- Sera.U桜台駅前のおすすめポイント
-
【1階】
★桜台店舗
★1階店舗
★桜台駅北口1分
★桜台北口商店会
★桜台通り沿い
★角地
★重飲食相談
★美容室相談
★エステ相談
★サロン相談
★スクール相談
★物販店相談
Sera.U桜台駅前の物件概要
| 建物名 | Sera.U桜台駅前 | 所在地 | 東京都練馬区桜台1‐5-4 |
|---|---|---|---|
| 交通 |
西武池袋線
『桜台駅』
徒歩1分 都営大江戸線 『練馬駅』 徒歩8分 西武有楽町線 『新桜台駅』 徒歩10分 |
||
| 構造 | 鉄骨造 | 総階数 | 地上4階 |
| 築年月 | 1990年7月 | 総戸数 | - |
| 賃料 | 29.7万円 | 管理費 | - |
| 面積 | 49㎡ | 間取り | - |
| 敷金 | 3.0ヶ月 | 礼金 | 1.0ヶ月 |
| 駐車場 | - | ||
| 特徴 | 1階店舗 / 事務所使用可 / 角部屋 | ||
| 設備 | 飲食店可 / ワンフロア / スクール向け / スケルトン渡し / 重飲食可 / 軽飲食可 / 視認性良好 / 路面店 / 美容室向け / 物販向け | ||
- ※写真や間取り図が現状と相違する場合は現状を優先させていただきます。
- ※掲載している物件が万が一ご成約の場合はご了承ください。
- ※駐車場、バイク置場、駐輪場の正確な空き状況についてはお問合せください。
- ※ペット飼育やSOHO利用の可否に関しては、建物の管理規約で可能になっていても、お部屋の所有者様によって禁止の場合もございますので御注意下さい。詳細はメールやお電話にてスタッフまでご相談下さい。
- ※こちら以外にも空室がある場合がございます。お電話かメールにてお気軽にお問合せください。
Sera.U桜台駅前の周辺MAP
※地図上の建物所在地は誤差がある場合があります。
拡大





