Across10 5階 /5F
敷金ゼロ お気に入り追加
| 賃料 | 693,000円 | 管理費 | 0円 |
|---|---|---|---|
| 築年月 | 1977年9月 | 所在階 | 5階 / 全6階 |
| 面積(坪数) | 46.9㎡(14.00坪) | 坪単価 | 5.0万円 |
| 敷金 | 0.0ヶ月 | 礼金 | 3.0ヶ月 |
| 敷金積み増し | - | ||
| その他初期費用 | - | ||
| 更新料 | - | 保証金 | 8.0ヶ月 |
| 入居日 | 即時 | 仲介手数料 | 1ヶ月 |
| 現況 | 空家・空室 | 取引態様 | 媒介 |
| 賃借種別 | 定期借家 | 定期借家期間 | 5年 |
| 所在地 | 東京都港区麻布十番1-11-10 | ||
| 交通 |
南北線
『麻布十番駅』
徒歩1分 都営大江戸線 『赤羽橋駅』 徒歩9分 日比谷線 『六本木駅』 徒歩17分 南北線 『白金高輪駅』 徒歩19分 |
||
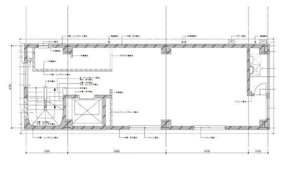
Across10の見取り図・外観・内観
- Across10のおすすめポイント
-
【5階】
★麻布十番店舗
★麻布十番大通り(商店街)沿い
★麻布十番駅4番出口から徒歩30秒
★重飲食相談
★屋上まで専用ダクトあり
★美容室相談
★エステ相談
★サロン相談
★スクール相談
★物販店相談
★シーシャNG
★大衆系店舗NG
★動物業態NG
Across10の物件概要
| 建物名 | Across10 | 所在地 | 東京都港区麻布十番1-11-10 |
|---|---|---|---|
| 交通 |
南北線
『麻布十番駅』
徒歩1分 都営大江戸線 『赤羽橋駅』 徒歩9分 日比谷線 『六本木駅』 徒歩17分 南北線 『白金高輪駅』 徒歩19分 |
||
| 構造 | 鉄骨鉄筋コンクリート | 総階数 | 地上6階 |
| 築年月 | 1977年9月 | 総戸数 | 6戸 |
| 賃料 | 69.3万円 ~ 104.5万円 | 管理費 | - |
| 面積 | 41㎡ ~ 47㎡ | 間取り | - |
| 敷金 | 0.0ヶ月 | 礼金 | 3.0ヶ月 |
| 駐車場 | - | ||
| 特徴 | エレベーター / 1階店舗 / 角部屋 | ||
| 設備 | 飲食店可 / ワンフロア / スクール向け / クリニック向け / スケルトン渡し / 重飲食可 / 軽飲食可 / 商店街 / 美容室向け / 物販向け | ||
- ※写真や間取り図が現状と相違する場合は現状を優先させていただきます。
- ※掲載している物件が万が一ご成約の場合はご了承ください。
- ※駐車場、バイク置場、駐輪場の正確な空き状況についてはお問合せください。
- ※ペット飼育やSOHO利用の可否に関しては、建物の管理規約で可能になっていても、お部屋の所有者様によって禁止の場合もございますので御注意下さい。詳細はメールやお電話にてスタッフまでご相談下さい。
- ※こちら以外にも空室がある場合がございます。お電話かメールにてお気軽にお問合せください。
Across10の周辺MAP
※地図上の建物所在地は誤差がある場合があります。
拡大





