ルルミエール両国 1階 /1F
| 賃料 | 440,000円 | 管理費 | 44,000円 |
|---|---|---|---|
| 築年月 | 2025年2月 | 所在階 | 1階 / 全5階 |
| 面積(坪数) | 65.31㎡(19.00坪) | 坪単価 | 2.3万円 |
| 敷金 | 6.0ヶ月 | 礼金 | 0.0ヶ月 |
| 敷金積み増し | - | ||
| その他初期費用 | - | ||
| フリーレント | 2.0ヶ月 | ||
| 更新料 | - | 保証金 | - |
| 入居日 | 即時 | 仲介手数料 | 1ヶ月 |
| 現況 | 空家・空室 | 取引態様 | 媒介 |
| 賃借種別 | 定期借家 | 定期借家期間 | 5年 |
| 所在地 | 東京都墨田区緑2-21-10 | ||
| 交通 |
都営大江戸線
『両国駅』
徒歩7分 中央・総武緩行線 『両国駅』 徒歩12分 都営新宿線 『菊川駅』 徒歩15分 中央・総武緩行線 『錦糸町駅』 徒歩16分 都営大江戸線 『森下駅』 徒歩16分 |
||
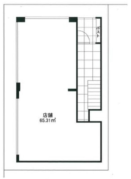
ルルミエール両国の見取り図・外観・内観
- ルルミエール両国のおすすめポイント
-
【1階】
■フリーレント2ヶ月■(時期により)
★両国店舗
★1階店舗
★区役所通り沿い
★角地
★軽飲食相談
★サロン相談
★スクール相談
★物販店相談
ルルミエール両国の物件概要
| 建物名 | ルルミエール両国 | 所在地 | 東京都墨田区緑2-21-10 |
|---|---|---|---|
| 交通 |
都営大江戸線
『両国駅』
徒歩7分 中央・総武緩行線 『両国駅』 徒歩12分 都営新宿線 『菊川駅』 徒歩15分 中央・総武緩行線 『錦糸町駅』 徒歩16分 都営大江戸線 『森下駅』 徒歩16分 |
||
| 構造 | 鉄筋コンクリート | 総階数 | 地上5階 |
| 築年月 | 2025年2月 | 総戸数 | - |
| 賃料 | 44.0万円 | 管理費 | 44,000円 |
| 面積 | 65㎡ | 間取り | - |
| 敷金 | 6.0ヶ月 | 礼金 | 0.0ヶ月 |
| 駐車場 | - | ||
| 特徴 | 1階店舗 / 事務所使用可 / 角部屋 | ||
| 設備 | スクール向け / クリニック向け / スケルトン渡し / 軽飲食可 / 視認性良好 / 路面店 / 美容室向け / 物販向け | ||
- ※写真や間取り図が現状と相違する場合は現状を優先させていただきます。
- ※掲載している物件が万が一ご成約の場合はご了承ください。
- ※駐車場、バイク置場、駐輪場の正確な空き状況についてはお問合せください。
- ※ペット飼育やSOHO利用の可否に関しては、建物の管理規約で可能になっていても、お部屋の所有者様によって禁止の場合もございますので御注意下さい。詳細はメールやお電話にてスタッフまでご相談下さい。
- ※こちら以外にも空室がある場合がございます。お電話かメールにてお気軽にお問合せください。
ルルミエール両国の周辺MAP
※地図上の建物所在地は誤差がある場合があります。
拡大





