プライマル池上 1階 /1-2F
礼金ゼロ お気に入り追加
| 賃料 | 330,000円 | 管理費 | 0円 |
|---|---|---|---|
| 築年月 | 2022年3月 | 所在階 | 1階 / 全14階 |
| 面積(坪数) | 81.51㎡(24.00坪) | 坪単価 | 1.4万円 |
| 敷金 | 8.0ヶ月 | 礼金 | 0.0ヶ月 |
| 敷金積み増し | - | ||
| その他初期費用 | - | ||
| 更新料 | 1.0ヶ月 | 保証金 | - |
| 入居日 | 即時 | 仲介手数料 | 1ヶ月 |
| 現況 | 空家・空室 | 取引態様 | 媒介 |
| 賃借種別 | 普通賃貸借 | 定期借家期間 | - |
| 所在地 | 東京都大田区池上7-10-10 | ||
| 交通 |
東急池上線
『池上駅』
徒歩1分 東急池上線 『千鳥町駅』 徒歩14分 東急池上線 『蓮沼駅』 徒歩15分 |
||
プライマル池上の見取り図・外観・内観
- プライマル池上のおすすめポイント
-
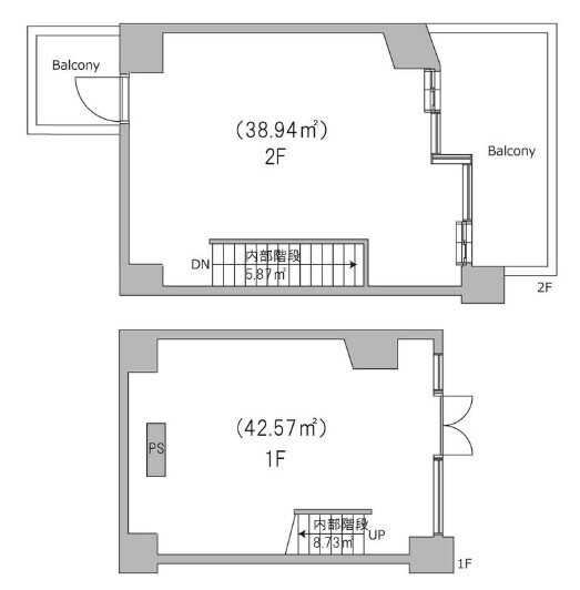
【1-2階】
★池上店舗
★1階店舗
★1-2階メゾネット
★池上駅1分
★軽飲食相談
★美容室相談
★エステ相談
★クリニック相談
★スクール相談
★物販店相談
★スケルトン
プライマル池上の物件概要
| 建物名 | プライマル池上 | 所在地 | 東京都大田区池上7-10-10 |
|---|---|---|---|
| 交通 |
東急池上線
『池上駅』
徒歩1分 東急池上線 『千鳥町駅』 徒歩14分 東急池上線 『蓮沼駅』 徒歩15分 |
||
| 構造 | 鉄筋コンクリート | 総階数 | 地上14階 |
| 築年月 | 2022年3月 | 総戸数 | - |
| 賃料 | 33.0万円 | 管理費 | - |
| 面積 | 82㎡ | 間取り | - |
| 敷金 | 8.0ヶ月 | 礼金 | 0.0ヶ月 |
| 駐車場 | - | ||
| 特徴 | 1階店舗 / 事務所使用可 / 角部屋 | ||
| 設備 | スクール向け / クリニック向け / 軽飲食可 / 視認性良好 / 路面店 / 美容室向け / 物販向け / メゾネット | ||
- ※写真や間取り図が現状と相違する場合は現状を優先させていただきます。
- ※掲載している物件が万が一ご成約の場合はご了承ください。
- ※駐車場、バイク置場、駐輪場の正確な空き状況についてはお問合せください。
- ※ペット飼育やSOHO利用の可否に関しては、建物の管理規約で可能になっていても、お部屋の所有者様によって禁止の場合もございますので御注意下さい。詳細はメールやお電話にてスタッフまでご相談下さい。
- ※こちら以外にも空室がある場合がございます。お電話かメールにてお気軽にお問合せください。
プライマル池上の周辺MAP
※地図上の建物所在地は誤差がある場合があります。
拡大





