マガザン下北沢
(空室 2)- 【 キャッシュバックあり 】クレディフォルムでお得に契約
-
初回ホームページからのお問い合わせ限定!
「仲介手数料の割引」「キャッシュバック」などお得な条件でのご契約が可能です。
※キャッシュバックや初期費用のお見積はお気軽にお問い合わせください。
銀座で15年の実績。都心部のお部屋探しならクレディフォルムにお任せください。
マガザン下北沢の募集中の事業用部屋一覧
(空室2)マガザン下北沢の物件概要
| 建物名 | マガザン下北沢 | ||
|---|---|---|---|
| フリガナ | マガザンシモキタザワ | ||
| 所在地 | 東京都世田谷区北沢2-29-16 | ||
| 交通 |
小田急小田原線
『下北沢駅』
徒歩2分 京王井の頭線 『新代田駅』 徒歩9分 小田急小田原線 『東北沢駅』 徒歩10分 |
||
| 賃料 | 38.5万円 ~ 52.3万円 | 管理費 | - |
| 敷金 | 0.0ヶ月 | 礼金 | 2.0ヶ月 |
| 面積 | 43.07㎡ ~ 44.56㎡ | 間取り | - |
| 構造 | 鉄骨鉄筋コンクリート | 総階数 | 地上2階 / 地下1階 |
| 築年月 | 2022年7月 | 総戸数 | - |
| 駐車場 | - | ||
| 特徴 | デザイナーズ / 1階店舗 | ||
| 設備 | 飲食店可 / 居抜物件 / 重飲食可 / 軽飲食可 / 視認性良好 | ||
- ※写真や間取り図が現状と相違する場合は現状を優先させていただきます。
- ※掲載している物件が万が一ご成約の場合はご了承ください。
- ※駐車場、バイク置場、駐輪場の正確な空き状況についてはお問合せください。
- ※ペット飼育やSOHO利用の可否に関しては、建物の管理規約で可能になっていても、お部屋の所有者様によって禁止の場合もございますので御注意下さい。詳細はメールやお電話にてスタッフまでご相談下さい。
- ※こちら以外にも空室がある場合がございます。お電話かメールにてお気軽にお問合せください。
■デザイナーズ
【マガザン下北沢】
★下北沢店舗
★デザイナーズ
★飲食相談
--- お客様お問い合わせ先 ------------------
株式会社クレディフォルム TEL:03-6228-5878
都営浅草線・東京メトロ日比谷線『東銀座駅』から徒歩3分
東京メトロ銀座線「銀座駅」徒歩2分
営業時間:10:00~20:00 定休日:年中無休(年末年始を除く)
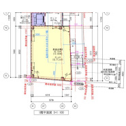
マガザン下北沢の部屋画像
マガザン下北沢の周辺MAP
※地図上の建物所在地は誤差がある場合があります。
拡大





